展示場予約 見学会イベント情報 イベント情報 お問い合わせ

平屋モデルハウス Hiraya model house

平屋モデルハウスのイメージ

Spacious home 自然素材と開放感で叶える
伸びやかな住まい

Hiraya model house

茨城のモデルハウスで叶える住まい 茨城のモデルハウスで叶える伸びやかな住まい

「平屋モデルハウス」とは

茨城の平屋モデルハウス1 茨城の平屋モデルハウス2

周囲の豊かな自然を感じながら、開放感のある伸びやかな暮らしを叶える
モデルハウスです。

思わず目を惹くハイセンスなデザイン
いつでも快適に過ごせる高性能
室内から外の景色を楽しめる
そして広さを感じられる空間設計

平屋の良さを最大限に引き出しながら、最新の性能を織り交ぜ、
最高の住み心地を実現しました。

室内にいながらも、まるで自然の中にいるかのような心地よさ。
この感動を、ぜひ実際に体感ください。

茨城の平屋モデルハウス3 茨城の平屋モデルハウス4
茨城のモデルハウスの初回来場特典

初回来場特典

モデルハウスへご予約・ご来場いただいたお客様に、家づくりをする上で知っておきたい「住まいの教科書」をプレゼントしています。
家族の健康を支えるための家づくりのポイントをご紹介しておりますので、ぜひ参考にしてください。

Hiraya model house 「平屋モデルハウス」のご紹介

Entrance

01.

外観・玄関

龍ヶ崎市の自然をゆっくり楽しんでいただくために、外壁にはカーテンウォールを採用し、美しい景観を眺められるようにしました。

茨城のモデルハウス(外観・玄関1)

Living/dining room

02.

リビング・ダイニング

天然素材ならではの木の色合いを最大限活かし、家の中にいるにも関わらず自然の中によるかのような心地よさを味わえます。

茨城のモデルハウス(リビング・ダイニング1)

玄関を抜けると、すぐにLDKの空間が広がっています。これは「空気の出入りが多い玄関や大きな窓があっても、外気温の影響を受けない」という、機能性の高さを実感いただくために設計しました。

茨城のモデルハウス(リビング・ダイニング2)

リビングの上はロフトになっており、階段をあえて透かせることで圧迫感を軽減し、空間を伸びやかに見せています。

茨城のモデルハウス(リビング・ダイニング3)

外の景色を眺めながらくつろげるロフト空間。
天井の30cm上は屋外となっており、非常に外と違い場所にも関わらず、夏場でも暑さを感じることはありません。

茨城のモデルハウス(リビング・ダイニング4)

Kitchen

03.

キッチン

屋外とのつながりを意識して、キッチン横にはハイドアを配置しました。
借景を活かした設計で、景色を楽しみながら伸び伸びとお料理やお食事をしていただけます。

茨城のモデルハウス(キッチン1)

オール電化のシステムキッチン。
どこからでも使用できる広々としたテーブルで、複数人でお料理を楽しめます。
すぐ隣に駐車場とつながる扉があるため、購入してきた食材を車から直接キッチンに運べるよう設計しました。

茨城のモデルハウス(キッチン2)

Bedroom

04.

寝室

シングル2つを置いたキングサイズでも、まだまだ空間に余裕が感じられる8畳の寝室にしました。実際の家づくりで、できるだけ無駄の少ない設計をしてもらえるように、参考としてもらえたらと、あえて広めに設計しました。
アイアンバーを設けておりますので、部屋干しコーナーも確保しています。

茨城のモデルハウス(寝室1)

オール電化のシステムキッチン。
どこからでも使用できる広々としたテーブルで、複数人でお料理を楽しめます。
すぐ隣に駐車場とつながる扉があるため、購入してきた食材を車から直接キッチンに運べるよう設計しました。

茨城のモデルハウス(寝室2)

Bathroom/washbasin/toilet

05.

浴室・洗面・トイレ

バスタブはTOTOのサザナを採用。
平屋モデルハウスは高台に位置していることから、あえて曇りガラスにはせず、星空が見えるよう透明ガラスにしました。
1日の疲れを取れるバスタイムで、ゆっくり星空を楽しんでいただけます。

茨城のモデルハウス(浴室・洗面・トイレ1)

当社では、洗面台はほぼ造作にてご用意しております。
広々とした鏡や洗面台なら、忙しい朝でも家族で並んで使用できます。

茨城のモデルハウス(浴室・洗面・トイレ2)

Wooden deck

06.

ウッドデッキ

平屋モデルハウスは三角形の変地形なため、家の基礎を造ることができない敷地がありました。その場所にはウッドデッキを置くことで、この土地を最大限に活用。
外の空気を楽しみながら読書をしたり、家族でバーベキューをしたり、楽しみ方は無限大です。

茨城のモデルハウス(ウッドデッキ)

Performance 平屋モデルハウスの性能

茨城のモデルハウスの気密性

気密性

一般的にC値1.0cm²/m²以下であれば高気密住宅とされていますが、セレクトホームの数値は0.2 cm²/m²を約束しており、非常に高い気密性を保持しています。気密性が高いことで屋外との空気の行き来を最小限に抑えます。

茨城のモデルハウスの断熱性

断熱性

2020年に義務化された省エネ基準(UA値0.87)に対して、平屋モデルハウスはUA値0.46と約2倍の性能の高さを実現しています。外気温を遮断することで、一年中快適な室温を保ちます。

茨城のモデルハウスの耐震性

耐震性

高い耐震性を有するFPの家を採用し、加えて制振ダンパーを設置することでさらに住宅の強度を向上させています。万が一の際でもセレクトホームの家があなたとあなたの家族を守ります。

茨城のモデルハウスの換気システム

換気システム

2時間おきに室内の空気の入れ替えを行える、24時間換気システム・ルフロ400を採用。
毎日新鮮な空気で、ほこりやウイルスを最小限に抑えます。

茨城のモデルハウスのオリジナル床暖房"

オリジナル床暖房

温水式の床暖房を完備しておりますので、部屋の隅々まで足元を暖かくすることができます。床から天井の間をふく射熱が行き来することで、床だけではなくお部屋全体を暖かくしてくれます。

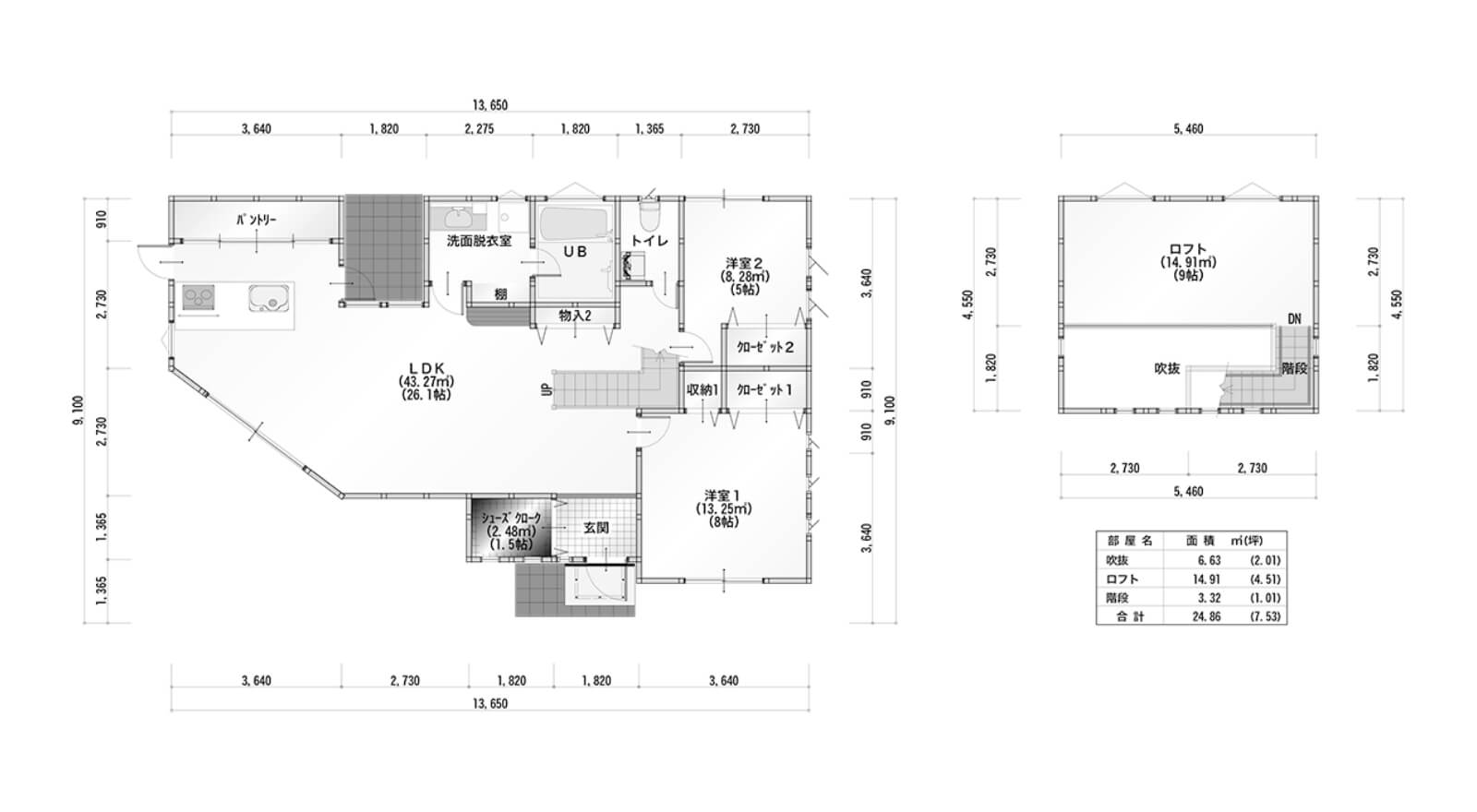
「平屋モデルハウス」の間取り図

茨城の平屋モデルハウスの間取り図

Access アクセス

平屋モデルハウス

〒301-0847
茨城県龍ヶ崎市城ノ内5-26-1
茨城のモデルハウスのご見学について

ご見学について

セレクトホームでは、モデルハウスの雰囲気を見ていただける見学会と、実際の住み心地を体感いただける宿泊のご案内をしております。
ご相談やご予約は専用フォームからご依頼ください。